YAMAHA
P 2500S

Klacht:
Doet niks meer. Led’s gaan ook niet aan. Zekering defect.

Diagnose:
- Hoofdzekering is doorgebrand.
- Zekering geplaatst en met een Variac de versterker onder spanning gezet.
- Reeds bij 25V AC bleek er al een grote stroom te gaan lopen.
- Versterker heeft kortsluiting.
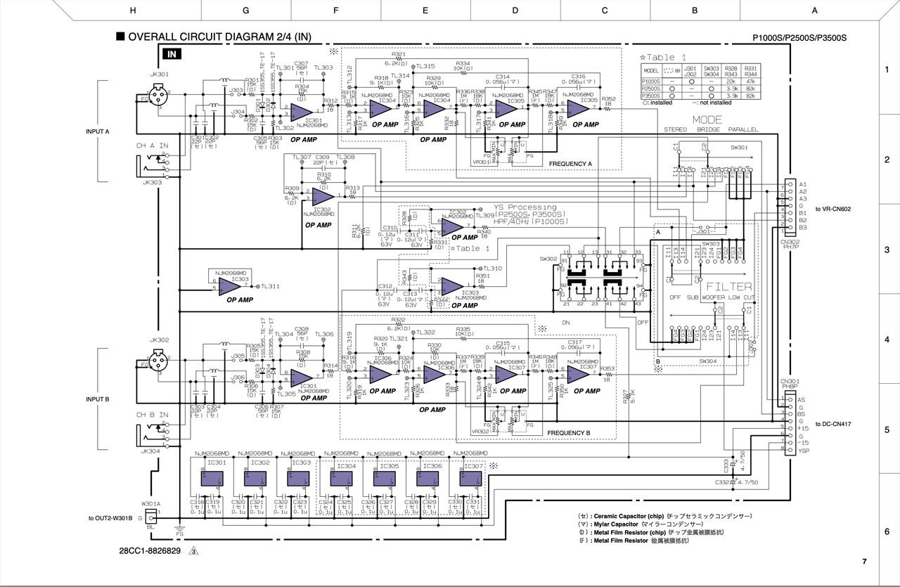
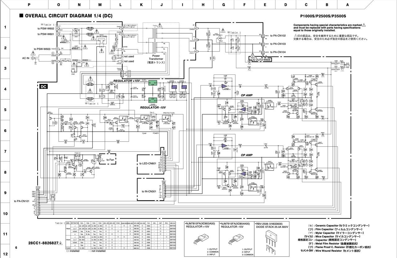
- Voeding van de eindversterkerprint afgehaald en opnieuw onder spanning gezet. Het voedingsgedeelte doet het goed. De geluikspanning is volgens opgave.
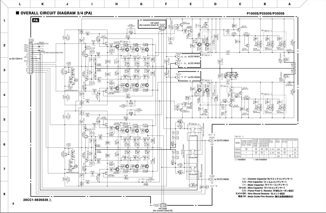
- Kortsluiting zit dus in de eindversterker. Deze unit eruit gehaald en alle transistoren doorgemeten.
- Aangezien de eindversterker transistoren parallel staan meet je overal een weerstand van 0 Ohm.
- Transistoren eruit gesoldeerd en nagemeten. Slechts één paar transistoren is defect. Betreft 2SA1492 en 2SC3856.
- Versterker nu kunnen testen met maar één paar werkende transistoren. (één kanaal werkt nu als een P1000S versterker)


Reparatie:
- Transistoren vervangen door een gepaarde nieuwe set.
- Versterker gereinigd.
- Potmeters gereinigd met Deoxit
- Versterker afgeregeld volgens opgave. CN107 en CN108 connectoren zitten wat verscholen op de print. Deze gebruiken om de ruststroom in te stellen. 0,5mV +/- 0,1mV
- FAN en TEMP led getest.
- DC op de uitgang getest. Deze was verwaarloosbaar klein.
- Versterker uitvoering getest.
Eindoordeel:
Wat een beest van een versterker. Met ruim 14kg is hij prima als sportschoolgewicht te gebruiken.
De opbouw is bijzonder overzichtelijk. Een grote ringkerntrafo, een voedingsboard en de eindversterker. Dankzij deze opbouw is hij ook erg gemakkelijk te servicen. De eindversterker zit met zes goed toegankelijke schroeven vast op de behuizing. Ook de aansluitkabels voor de voedingsspanning, de luidsprekeruitgang en de aansturing zijn eenvoudig los te maken. Hierna haal je de complete versterkerprint met koelplaat uit de behuizing.
Hoe klinkt deze P2500S versterker?
Lomp, groot, zwaar, krachtig.Een beest van een versterker en zo klinkt hij ook. Ik mis de details maar wat een kracht in het laag. Voor een goed feest is dit je ideale vriend. Voor de muziekgenieter een vage kennis.









































































